
BYT PRAHA HÁJE
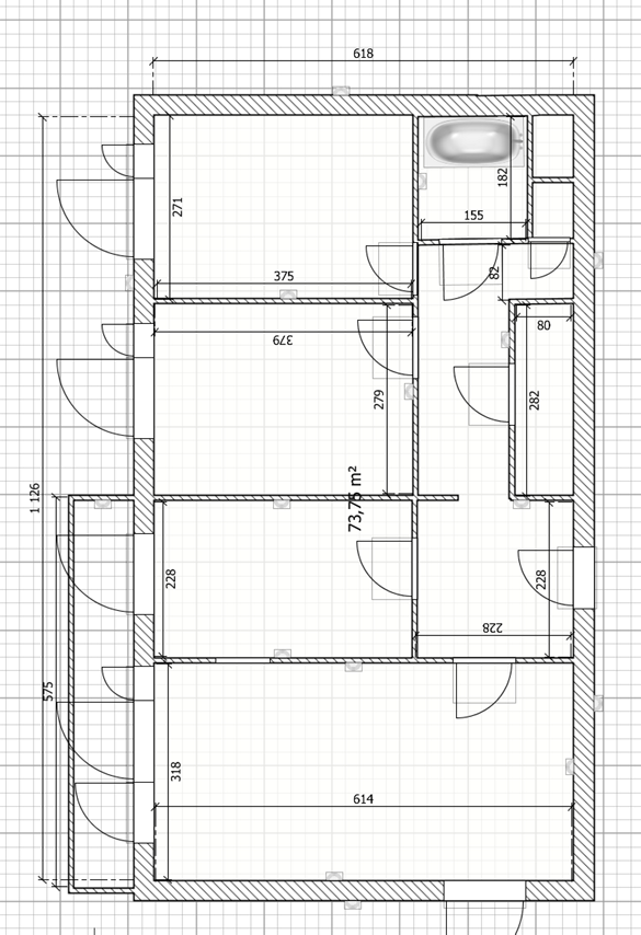
Nabízím k prodeji krásný zrekonstruovaný byt v osobním vlastnictví v 1. patře panelového domu v lokalitě Praha/Háje. Dispozičně řešený byt 3+1 o velikosti 83 m2 je doplněný o velikou nadstandartní lodžii, která je doplněná o posuvné prosklené tabule. V bytě je komora sloužící místo sklepní kóje. Byt má všechny pokoje, kuchyň i sociální zázemí samostatně přístupné, a tak si může v bytě každý najít své soukromí bez rušení. Dům je zateplený, osazený plastovými okny v bílém dekoru. Na chodbě v přízemí a ve výtahu je kamerový bezpečnostní systém. Vstupní dveře do domu jsou z přední i zadní části a lze je otvírat pomocí čipu.
Na Hájích se nachází kompletní občanská vybavenost, je situována západním a jihozápadním směrem od bytu a je v docházkové vzdálenosti, cca 3 min pěšky.
Hájemi prochází ulice Opatovská, která se na jihozápadě napojuje na ulici Brněnská, jež se jihovýchodním směrem mění na dálnici D1. Na severovýchodě se ulice Opatovská kolmo napojuje na ulici Výstavní, vedoucí z Petrovic do centra Prahy. Dopravní obslužnost je zajištěna především metrem a několika linkami městských autobusů. Metro linka C zastávka ,,Háje" je od domu v nedaleké vzdálenosti cca 540 m (9 min pěšky). Zastávka BUS ,,Horčičkova" je od domu ve vzdálenosti cca 290 m (5 min pěšky).
Nemovitost se nachází v širším centru Hájí, ulici Plickova č.p. 19. Nejbližší okolní zástavba je rezidenčního charakteru, tvořena panelovými domy a občanskou vybaveností.
V blízkosti se nachází tenisové kurty, kozlovna, fotbalové hřiště, škola, dětské hřiště a také vodní nádrž Hostivař. Díky těmto parametrům jste pomocí metra rychle v centru a na druhou stranu je to jen kousek do přírody.
Celkově se jedná o velmi příjemný byt, který budoucímu majiteli poskytne plnohodnotné bydlení.
Zavolejte si o více informací.
